На Фабрике Доктор Губер мы занимаемся не только производством и поставкой оборудования для частных винокуров и коммерческих производств. Важная часть нашей работы — это разработка рецептур и проведение тестов.
В этой статье мы хотели бы поделиться историей одного из наших недавних кейсов по разработке технологии получения спирта из риса.
Спойлер: нам удалось выйти на рекордный показатель по выходу для риса!
Но обо всем по порядку.
Задача проекта
К нам обратился клиент с идеей наладить производство спирта из местного сырья в Камбоджи. Мы сразу поняли, что будет непросто.
Рис — главный продукт региона, но при этом крайне сложное сырьё для спиртового брожения. Его крахмал нерастворим и недоступен для дрожжей, поэтому без правильного осахаривания из него невозможно получить качественный спирт.
Клиент попросил нас разработать для него рабочую технологию производства этилового спирта из риса с максимальным выходом качественного продукта. Мы предложили комплексное решение: от разработки рецептуры до выбора оборудования и адаптации технологии под реальные производственные условия.
Мы создали стабильную и повторяемую технологию получения этилового спирта 96,6% из риса, адаптированную под местное сырьё и климатические особенности Камбоджи.
Разработка рецептуры
Для выработки наиболее производительной рецептуры была проведена серия экспериментов в испытательной лаборатории Фабрики Доктор Губер.
Исследование сырья
Наши технологи начали исследование самого популярного камбоджийского риса — белого длиннозерного. Специалисты изучили зерно, оценили содержание крахмала, его структуру и влажность. Каждый параметр важен: от них зависит, как легко сахар превратится в брагу, а затем — в чистый спирт.
Оснащение лаборатории
Для экспериментов с таким типом сырья и температурными режимами для его переработки было подготовлено испытательное оборудование.
Мы постоянно оснащаем лаборатории на ликероводочных производствах и в исследовательских институтах испытательным оборудованием для отработки рецептур. В этом случае мы также подобрали оптимальный комплект оборудования для проведения экспериментов.
Важным условием является проведение технологических испытаний в условиях, максимально приближенных к производственным.
Для отработки рецептуры рисового спирта использовался следующий комплект оборудования:
- Заторно-сусловарочный котел с рабочим объемом 50 литров, электрической мешалкой, блоком управления и автоматизированными режимами затирания и дистилляции.
- Фильтр-чан с рабочим объемом 50 литров для качественной фильтрации затора и сбраживания рисовой браги.
- Ректификационная колонна для очистки спирта по запатентованной технологии Доктор Губер.
- Перегонный куб 50 литров с паровым нагревом.
Такое сочетание оборудования позволило точно контролировать все технологические параметры и получить максимальный выход продукта крепостью 96,6%.
Подбор ферментов
Самая сложная часть нашего исследования — подбор ферментов для многоступенчатого осахаривания.
В ходе серии экспериментов мы испробовали разные виды ферментов, подбирая комбинацию веществ, которые будут максимально расщеплять рисовый крахмал на сбраживаемые сахара.
Известно, что азиатские производители спирта часто используют кодзи для получения рисовой браги. Почему мы не воспользовались этим методом?
Кодзи — это дрожжи, в состав которых добавлены ферменты прямо в упаковке. Они рассчитаны в основном на холодное брожение и нередко имеют неясное происхождение ферментных компонентов, поэтому выход спирта с ними обычно не самый высокий.
Мы же пошли классическим путём: провели полноценное затирание риса с отваркой и выдержкой оптимальных температурных пауз для работы ферментов. Такой подход позволяет максимально эффективно клейстеризовать крахмал и осахарить его до моносахаридов, сбраживаемых дрожжами, чтобы получить высокий выход спирта с чистым вкусом.
Эффективность ферментов проверяли классической йодной пробой, обращая внимание на каждое темно-синее крахмальное пятно.
В итоге мы нашли ферменты, подходящие для стопроцентного осахаривания риса, после работы которых в заторе не остается нерасщепленного крахмала.
С помощью молочной кислоты настроили диапазон pH в заторе так, чтобы ферменты работали максимально эффективно, превращая крахмал в сахара, готовые к брожению.
Подбор штамма дрожжей
Но и это только полдела. Нам нужны были дрожжи, которые обеспечат стабильное качество сбраживания. После ряда экспериментов мы остановились на дрожжах Fermentis, предназначенных для сбраживания солодового сусла. Осахаренный рис по своим свойствам вполне сопоставим с солодом. Мы отобрали нужный штамм и определили оптимальный объем вносимых дрожжей.
Результаты испытаний
Мы провели полный цикл технологических работ:
- осахаривание риса ферментами;
- постановка и сбраживание браги;
- перегонка браги спирт-сырец;
- ректификация и получение чистого рисового спирта.
После нескольких тестов и пробных перегонок мы получили полностью отлаженный рецепт спирта-ректификата из риса.
Из 30 литров воды и 12,5 кг риса нами было получено 32 л спирта-сырца с крепостью 33% об. Выход спирта-ректификата составил 7 л с крепостью 96,6% об.
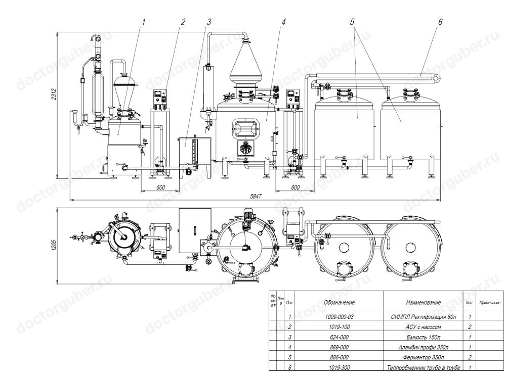
Подбор и разработка производственного комплекса
Параллельно испытаниям в лаборатории наш конструкторский отдел прорабатывал конструкцию спиртзавода, на котором наш клиент будет непосредственно работать уже в Камбодже.
Комплекс оборудования подбирался и разрабатывался относительно условий помещения, где будет организовано производство.
Наши компетенции для вашего бизнеса
Наши технологи провели большую работу, чтобы выполнить задачу клиента. Достичь идеала удалось не с первого раза. Была проведена серия экспериментов, подбирались разные ферменты и штаммы дрожжей, сделано несколько тестовых варок, пока мы не добились максимального выхода спирта с чистым вкусом и высочайшей крепостью.
Клиент получил полностью готовую и отработанную технологию производства рисового спирта, включающую:
- рецептуру с точными параметрами температур, дозировок и ферментов;
- технологическую карту процесса с рекомендациями по оборудованию;
- результаты тестов и аналитические данные.
Помимо работы в лаборатории, был производен и сконструирован комплекс оборудования.
Полученный спирт может быть использован использоваться как база для производства рисовой водки, настоек и других напитков.
Мы не просто показали, как превратить рис в спирт. Главное, что мы сделали — это сэкономили время клиента, предоставив ему все необходимое для запуска производства напитков. Также мы:
- предоставили доступ к авторским методикам переработки, дистилляции и ферментации;
- разработали индивидуальные решения под конкретные задачи производства;
- минимизировали риски благодаря контролю каждого этапа опытной командой.
Теперь клиент может смело делать качественные напитки на базе рисового спирта, экспериментировать с рецептурами и расширять ассортимент, не тратя время на тесты и поиск оптимальных условий. Мы сделали сложное простым, а идею — реальностью!
Если вы тоже запускаете производство алкоголя и хотите получить точные рецептуры и рекомендации специалистов, то обращайтесь к нам: наши инженеры и биотехнологи разработают технологию под ваши цели, сырьё и масштаб!
За полной технологической картой по производству спирта из риса вы можете обратиться к нам, оставив заявку в чате на сайте.

